Paraparaumubeach

powered by Open2view.com
SOLD

Wellington
1
1
N/A
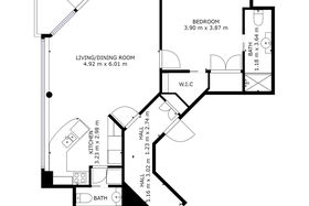
70sqm
N/Asqm
Wellington
proudly marketed by
Tall Poppy - Paraparaumu
A Coastal Sanctuary @ The Links
It's not often that truly affordable properties reach the market in the ever-popular seaside suburb of Paraparaumu Beach. As a result, interest in this immaculately presented Apartment is sure to be high. Inside, this tidy unit features one good-sized bedroom and spacious, sunny living areas which spill outside through doors to a deck that overlooks the famous Paraparaumu Beach golf course. The Links complex includes use of an indoor, heated Pool, Sauna, stunning Tennis court and a recreational room. You also acquire two secure, covered car parks as well as a generous storage area. The proximity to the beach and a host of cafes, shops, activities and handy public transport routes completes the appeal. If you're drawn by the lure of the beach and the promise of a more laid-back lifestyle, then this truly is the ultimate opportunity. Live here permanently, work from home, or keep it as a holiday retreat - but act quickly, as properties of this calibre, in this exclusive destination, are in high demand. Call me now.
Question
Please leave this field blank:
Upload by Phil Armitage
Horowhenua/Kapiti Coast Photographer Franchisee
This property was photographed by