Paraparaumubeach

powered by Open2view.com

63b Kotare Street

Wellington
0
0
N/A
N/Asqm
7157sqm
63b Kotare Street Wellington
proudly marketed by
Ray White Paraparaumu
Perfect Panorama
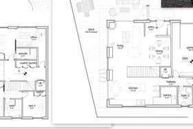
An exquisite 1.7-acre site, elevated for sensational views to the sea and Kapiti Island, sitting just below the Hemi Matenga Scenic Reserve. Newly created, off a private R.O.W entrance, this precious Waikanae site offers an extremely rare opportunity to develop your architectural dream. Available with full working plans and resource consent for a beautiful four bedroom, three bathroom home. Carefully planned and designed with all of the hard work done, it's just waiting for you to build, move in and enjoy. Proudly represented for sale by Richard Dow Rateable Valuation $380,000 (not indicative of value) Viewing by Appointment *SOURCE: LAND AREA, Legal Title, Rateable Valuation (non-verified): Propertysmarts by REINZ Ventures Limited. IMAGES: Open2view Limited. Rates and Specific Property Information (non-verified) Kapiti Coast District Council, KCDC Geographic Information System (GIS).
Question
Please leave this field blank:
Location
Upload by Phil Armitage
Horowhenua/Kapiti Coast Photographer Franchisee
This property was photographed by